

Real architecture meets full AI workflow.
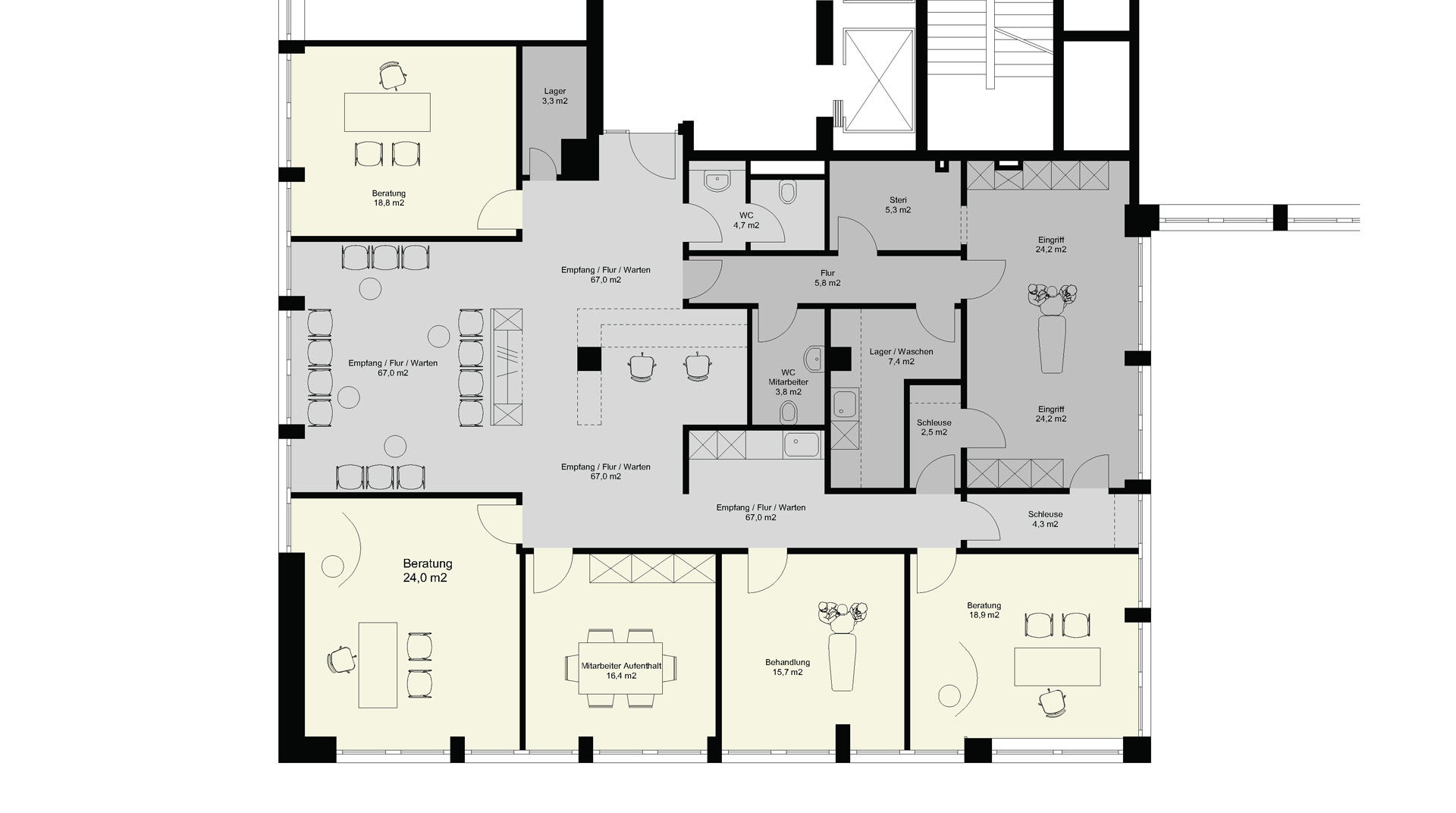
I developed a second medical practice from scratch — new property, new brief, new floor plan developed directly with the client. The architectural work was done the traditional way: precise spatial planning, compliant room layout, detailed floor plan documentation. The visualisation was not. Where the first practice project involved a week of V-Ray rendering, this one went from concept to photorealistic output in a day using Gemini and Flux. The gap between the basic Enscape render and the AI result speaks for itself — same rigour in planning, completely different world in presentation.
Hidden gem: CG nerds will notice — the shadows are wrong.